APPARTEMENT KITSCH

2025

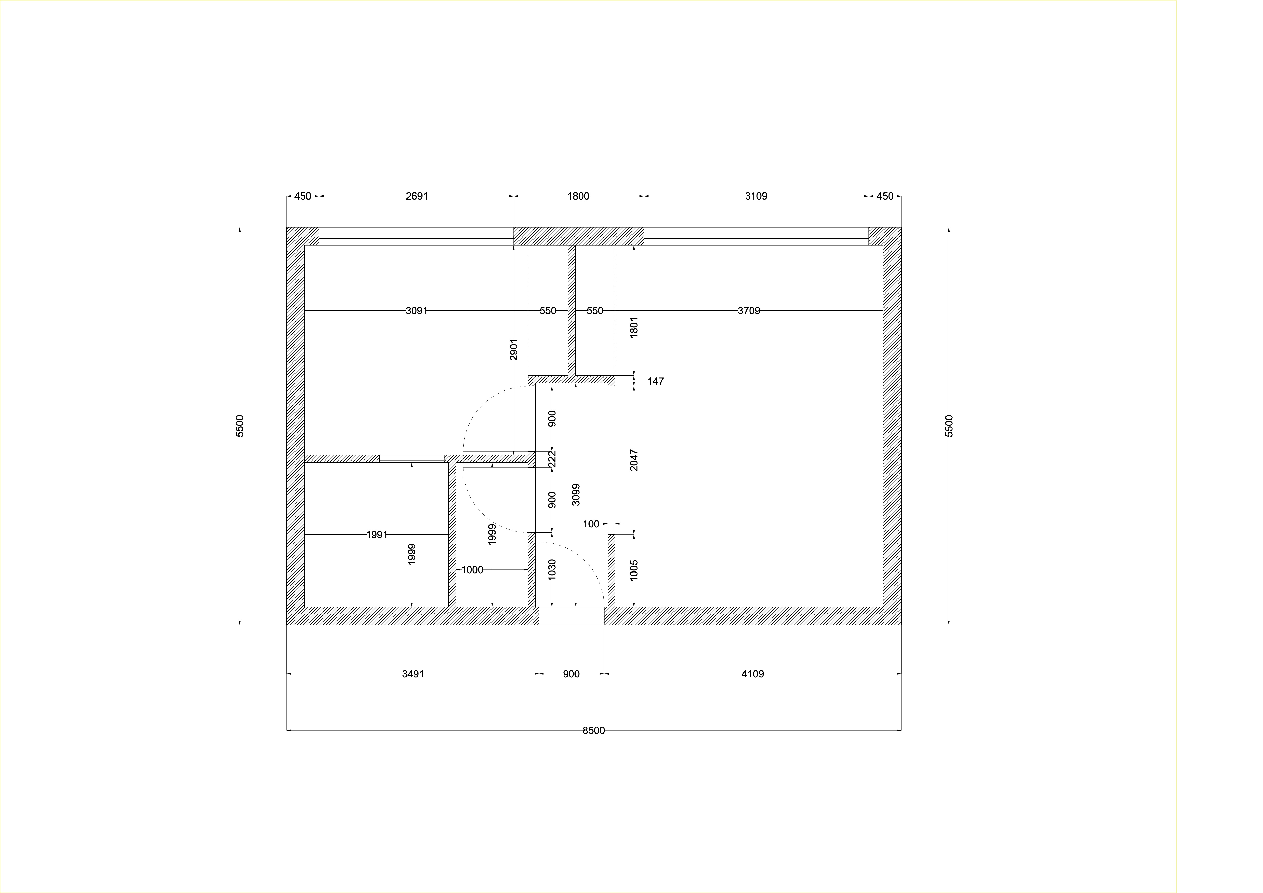
Projection 3D (Blender) accompagnée du plan (AutoCAD) d’un projet de réaménagement d’un appartement T3 toulousain d’environ 40-50 m². L’aménagement adopte un style résolument kitsch, combinant murs aux couleurs vives, sols à motifs zébrés et surfaces murales évoquant des motifs de girafe. L’ensemble met en scène une esthétique volontairement décalée et exubérante, où chaque pièce se distingue par sonn identité forte et son univers visuel unique.

Cursor Hand