APPARTEMENT MIDCENTURY

2025

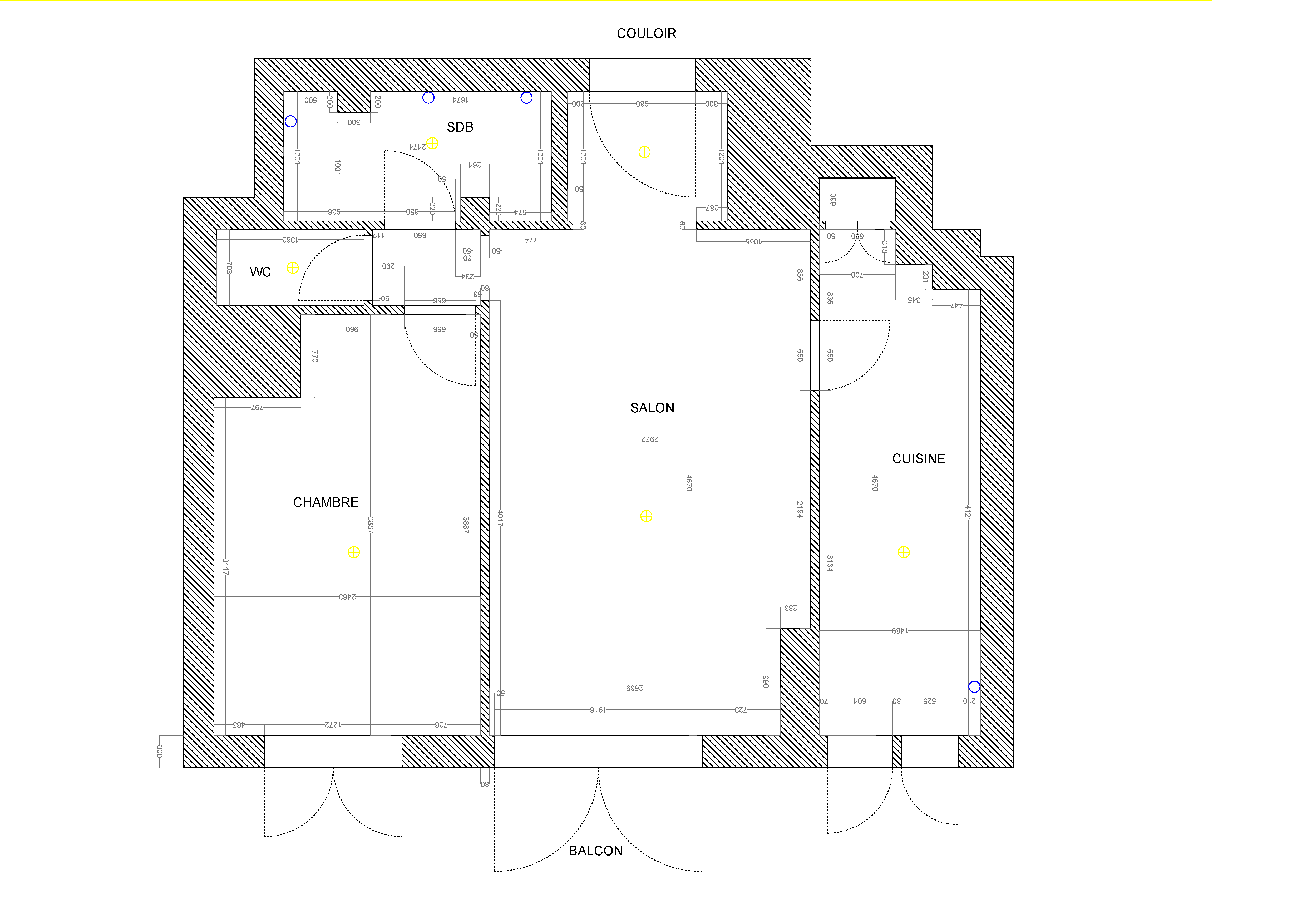
Projection 3D (Blender) accompagnée du plan (AutoCAD) d’un projet de réaménagement d’un appartement T3 toulousain d’environ 50 m². L’aménagement s’inspire du style mid-century modern, tout en mettant en valeur une palette de couleurs franches et contrastées, afin de conférer à chaque pièce une atmosphère propre et singulière.

Cursor Hand